Skip to main content

Jingumae 5Chome House

JPY 498,000,000

Exchange rate data accurate as of 2026-05-03 09:00:00.
House 4 1 213.27m²

Luxury Living in Shibuya: Discover 「Jinguumae 5-Chome House」
Exclusive Property in the Heart of Shibuya
Spacious 4SLDK Home with Premium Amenities
Nestled in the prestigious Jinguumae 5-Chome neighborhood of Shibuya, this luxury residence offers an unparalleled blend of elegance and convenience. Boasting a generous 213.27㎡ of living space, this home is designed for those who appreciate comfort and sophistication.
Prime Location with Excellent Connectivity
Located just minutes from Tokyo’s major transport hubs, this home provides seamless access to the best the city has to offer:
•Shibuya Station (Tokyu Den-en-toshi Line, Tokyu Toyoko Line, and more) – 7-minute walk
•Meiji-Jingumae Station (Tokyo Metro Chiyoda Line) – 10-minute walk
•Omotesando Station (Tokyo Metro Hanzomon Line) – 10-minute walk

Key Features of Jinguumae 5-Chome House:
•Pet-friendly residence
•Premium Jinguumae address in a quiet residential area
•Multi-line access ensures easy city-wide commuting
•Total floor area of 213.27㎡, with well-balanced layouts:
-First Floor: 58.69㎡
-Second Floor: 54.01㎡
-Third Floor: 40.47㎡
-Basement: 60.10㎡
•Home elevator for enhanced accessibility
•Built-in shutter garage with space for one vehicle
•Storage on every floor for maximum convenience
This stunning residence is a rare opportunity to own a home in one of Tokyo’s most sought-after neighborhoods. Whether you are looking for a spacious family home or a high-end investment property, Jinguumae 5-Chome House offers the perfect balance of luxury, comfort, and location.

Features

Property feature: pets

Pets

Other features include:

Parking

Property Information

Sale Status
Enquire for details
Price / m²
¥2,335,068
Bldg-to-Land-Ratio
60%
Floor-space-Ratio
200%
Parking
1 included
Pets
OK
Land Size
98.55 m² / 1060.78 ft² / 29.81 tsubo
Land Right
Freehold
Structure
Wood & Reinforced Concrete
Year Built
2013
Total Floors
3 storeys

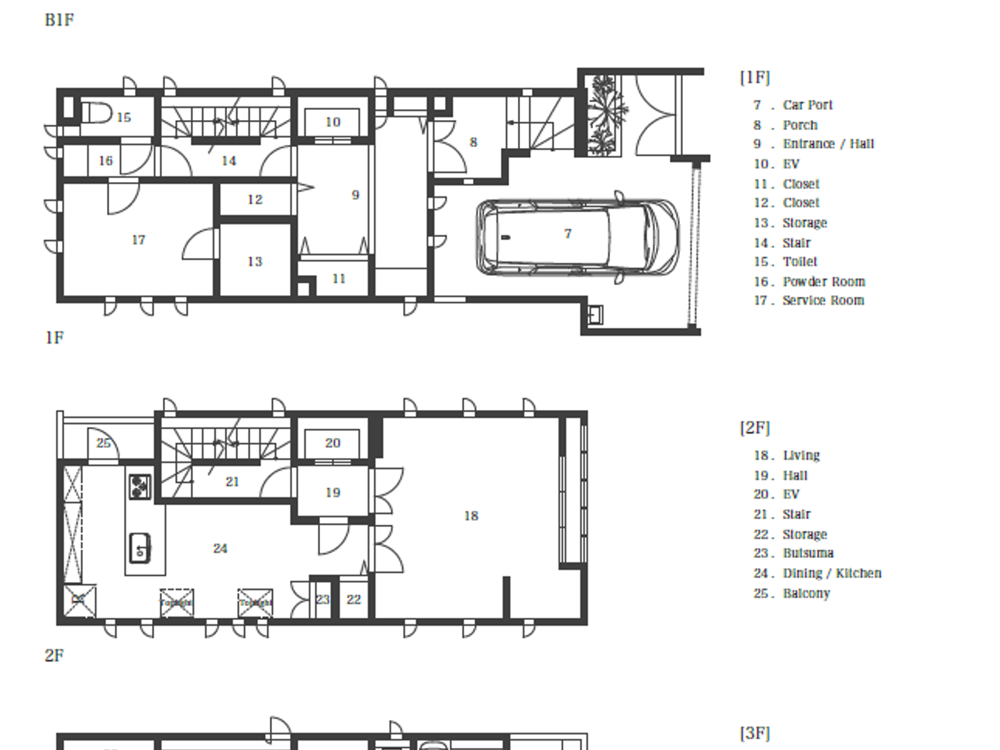
Floor Plan

Floorplan

Note: actual layout may differ slightly from this floorplan.

Location

5-22-5 Jingumae, Shibuya, Tokyo

Access

Meiji-jingumae (Harajuku) Station

  • Tokyo Metro Fukutoshin Line Tokyo Metro Fukutoshin Line (6 min.)
  • Tokyo Metro Chiyoda Line Tokyo Metro Chiyoda Line (7 min.)

Shibuya Station

  • Tokyu Toyoko Line Tokyu Toyoko Line (8 min.)
  • Tokyo Metro Fukutoshin Line Tokyo Metro Fukutoshin Line (8 min.)
  • JR Yamanote Line JR Yamanote Line (9 min.)
  • JR Saikyo Line JR Saikyo Line (9 min.)
  • JR Narita Express JR Narita Express (9 min.)
  • JR Shonan-Shinjuku Line JR Shonan-Shinjuku Line (9 min.)
  • Tokyo Metro Ginza Line Tokyo Metro Ginza Line (9 min.)
  • Tokyo Metro Hanzomon Line Tokyo Metro Hanzomon Line (9 min.)
  • Keio Inokashira Line Keio Inokashira Line (10 min.)

Omotesando Station

  • Tokyo Metro Ginza Line Tokyo Metro Ginza Line (9 min.)
  • Tokyo Metro Chiyoda Line Tokyo Metro Chiyoda Line (9 min.)
  • Tokyo Metro Hanzomon Line Tokyo Metro Hanzomon Line (9 min.)

Harajuku Station

  • JR Yamanote Line JR Yamanote Line (10 min.)

Request Information

* Required

Inquire Now

CLOSE

BACK

Jingumae 5Chome House - building
Jingumae 5Chome House
Jingumae 5Chome House
Jingumae 5Chome House
Jingumae 5Chome House
Jingumae 5Chome House
Jingumae 5Chome House
Jingumae 5Chome House
Jingumae 5Chome House