SH1112918

Jingumae 5Chome House

5-22-5 Jingumae, Shibuya, Tokyo

4 | 1 | House

213.27m² (2295.62ft², 64.51 tsubo)

JPY 498,000,000

Sale Status: Enquire for details

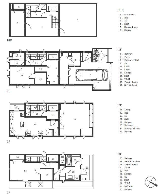
Floorplan

Note: actual layout may differ slightly from this floorplan.

        
    
building

Details

Price / m²
¥2,335,068
Parking
1 included
Pets
OK
Structure
Wood & Reinforced Concrete
Bldg-to-Land-Ratio
60%
Floor-space-Ratio
200%
Land Size
98.55m² / 1060.78ft² / 29.81 tsubo
Land Right
Freehold
Year Built
2013
Total Floors
3

Transportation

  • Meiji-jingumae (Harajuku) Station
    • Tokyo Metro Fukutoshin Line (6 min.)
    • Tokyo Metro Chiyoda Line (7 min.)
  • Shibuya Station
    • Tokyu Toyoko Line (8 min.)
    • Tokyo Metro Fukutoshin Line (8 min.)
    • JR Yamanote Line (9 min.)
    • JR Saikyo Line (9 min.)
    • JR Narita Express (9 min.)
    • JR Shonan-Shinjuku Line (9 min.)

Features

  • pets
  • parking