Kurohime spacious residence with wide wood deck
3884-534 Nagano
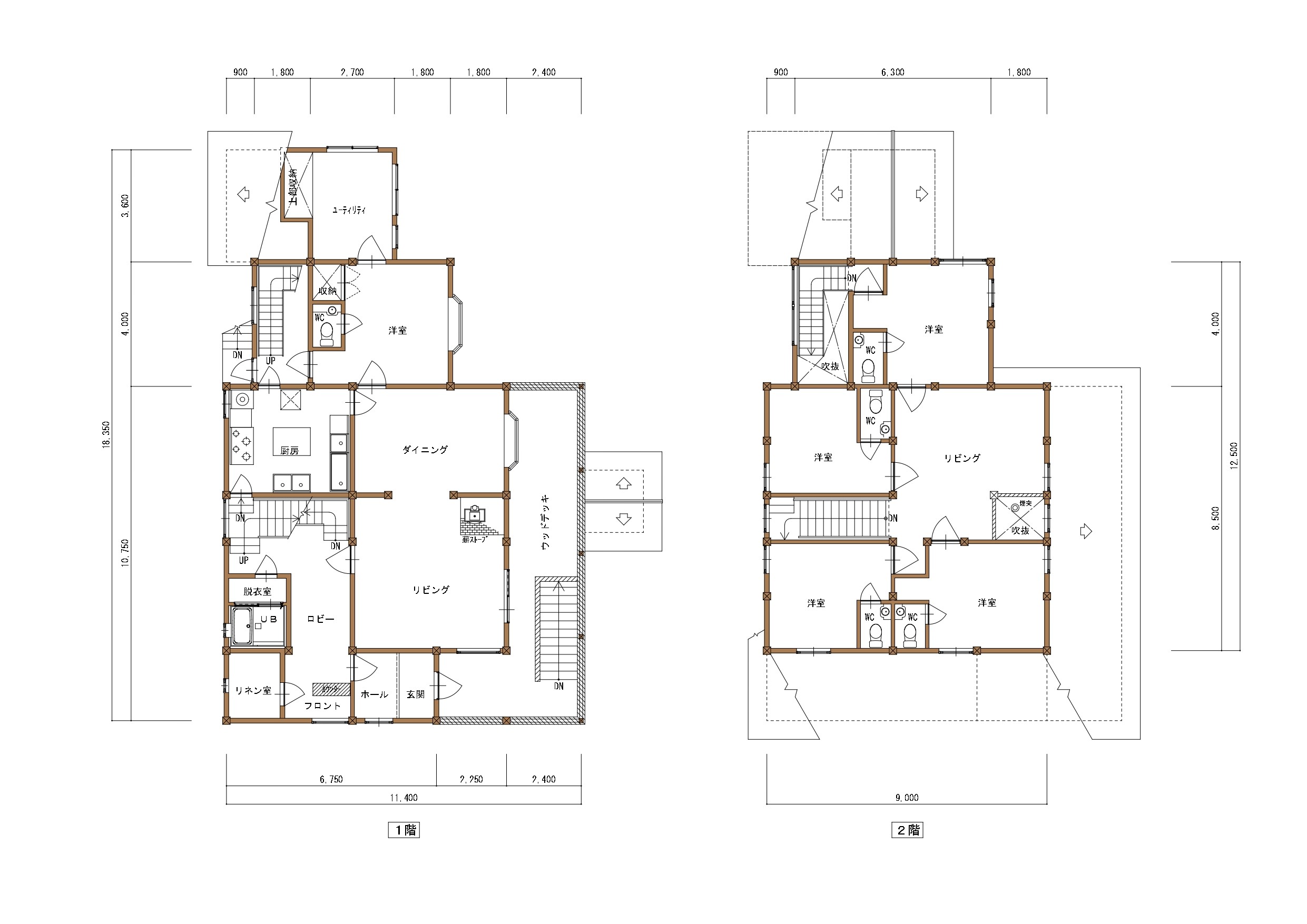
5 | 5 | House
249.25m² (2682.9ft², 75.4 tsubo)
JPY 36,000,000
Sale Status: For Sale
Note: actual layout may differ slightly from this floorplan.
Form of transaction: Brokerage | Valid until: 2025-05-10 | Affiliate association: National Federation of Real Estate Transaction Associations
Agent fee covered by: Buyer 3% of Purchase Price + JPY 60,000 + Tax | License Number: Tokyo Metropolitan Governor (2) No. 98912