SA1113197

Mita Garden Hills North Hill 5F

1-4-74 Mita, Minato, Tokyo

1 | 1 | Apartment

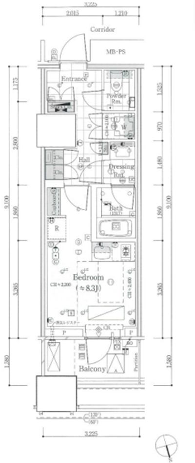
29.34m² (315.81ft², 8.88 tsubo)

JPY 184,800,000

Management Fee: JPY 27,080 / month

Repair Reserve Fund:

Sale Status: Enquire for details

Floorplan

Note: actual layout may differ slightly from this floorplan.

cover-photo

Details

Price / m²
¥6,298,569
Parking
Available
Pets
Negotiable
Structure
Composite Steel & Reinforced Concrete
Land Right
Freehold
Year Built
2025
Total Floors
14

Transportation

  • Akabanebashi Station
    • Toei Oedo Line (4 min.)
  • AzabuJuban Station
    • Tokyo Metro Namboku Line (5 min.)
    • Toei Oedo Line (7 min.)
  • ShibaKoen Station
    • Toei Mita Line (11 min.)
  • Mita Station
    • Toei Asakusa Line (13 min.)
    • Toei Mita Line (13 min.)
  • Tamachi Station
    • JR Yamanote Line (14 min.)
    • JR Keihin Tohoku Line (14 min.)

Features

  • hot water
  • carpeting
  • flooring
  • cooking stove
  • heated flooring
  • dishwasher
  • small balcony
  • aircon
  • open kitchen
  • security system
  • video intercom
  • toilet