SH1112709

Nishi-Shinjuku Former Embassy

4-9-7 NishiShinjuku, Shinjuku, Tokyo

2 | 4 | House

457.41m² (4923.52ft², 138.37 tsubo)

JPY 1,070,000,000 (negotiable)

Sale Status: For Sale

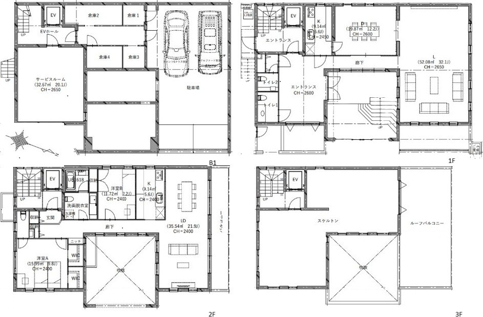
Floorplan

Note: actual layout may differ slightly from this floorplan.

        
    
cover-photo
courtyard
entrance

Details

Price / m²
¥2,339,258
Road 1
Public, North-East, 4.5m
Parking
2 included +
Pets
OK
Structure
Reinforced Concrete
Bldg-to-Land-Ratio
60%
Floor-space-Ratio
300%
Land Size
248.53m² / 2675.15ft² / 75.18 tsubo
Land Right
Freehold
Year Built
2009
Total Floors
3

Transportation

  • Nishi-shinjuku-gochome Station
    • Toei Oedo Line (2 min.)
  • Tochomae Station
    • Toei Oedo Line (8 min.)
  • Hatsudai Station
    • (11 min.)
  • NishiShinjuku Station
    • Tokyo Metro Marunouchi Line (12 min.)
  • Nakano-sakaue Station
    • Toei Oedo Line (13 min.)
    • Tokyo Metro Marunouchi Line (14 min.)
  • Nakano-shimbashi Station
    • Tokyo Metro Marunouchi Line (15 min.)
  • Shinjuku Station
    • Keio Line (16 min.)

Features

  • kitchen
  • hot water
  • lighting fixtures
  • flooring
  • oven
  • cooking stove
  • dishwasher
  • large balcony
  • rooftop balcony
  • aircon
  • toilet
  • washlet