SH1112196

Omotesando L-House

4-17-13 MinamiAoyama, Minato, Tokyo

4 | 2 | House

170.3m² (1833.09ft², 51.52 tsubo)

JPY 550,000,000

Sale Status: Enquire for details

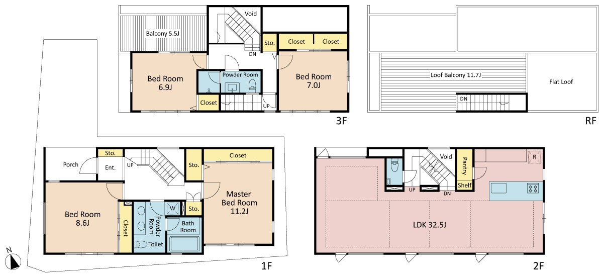
Floorplan

Note: actual layout may differ slightly from this floorplan.

        
    
building
entrance
living-dining

Details

Price / m²
¥3,229,595
Road 1
Public, North, 4m
Parking
2 included
Pets
-
Structure
Wood Frame
Bldg-to-Land-Ratio
60%
Floor-space-Ratio
160%
Land Size
131.06m² / 1410.72ft² / 39.65 tsubo
Land Right
Freehold
Year Built
2013
Total Floors
3

Transportation

  • Omotesando Station
    • Tokyo Metro Ginza Line (8 min.)
    • Tokyo Metro Chiyoda Line (8 min.)
    • Tokyo Metro Hanzomon Line (8 min.)
  • Gaienmae Station
    • Tokyo Metro Ginza Line (9 min.)
  • Nogizaka Station
    • Tokyo Metro Chiyoda Line (10 min.)
  • Aoyama-itchome Station
    • Tokyo Metro Ginza Line (14 min.)
    • Tokyo Metro Hanzomon Line (14 min.)
    • Toei Oedo Line (14 min.)

Features

  • parking